2011
projekt indywidualny
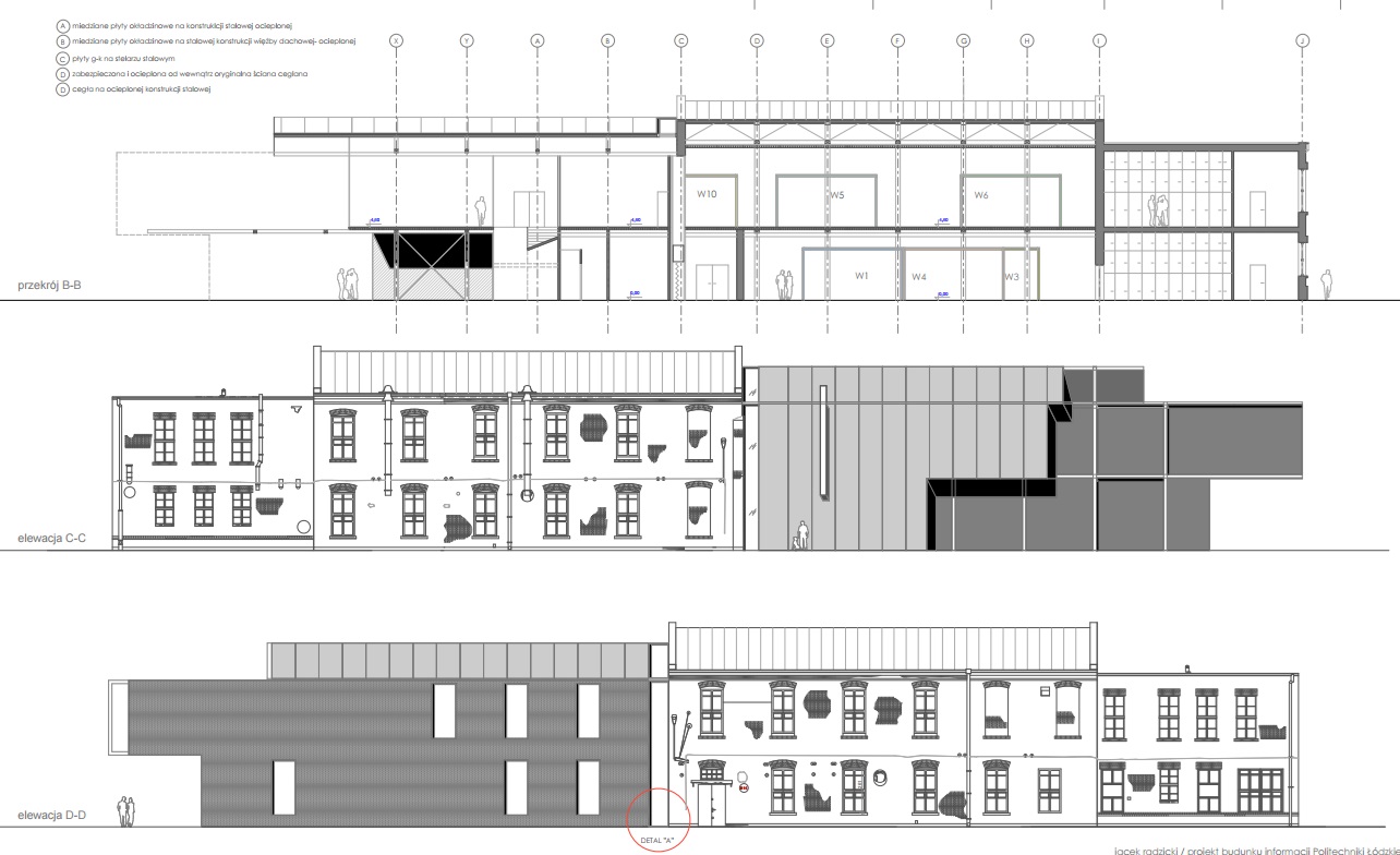
Projekt centrum informacji Politechniki Łódzkiej.
Projektując na terenie pofabrycznego budynku campusu PŁ zadaniem było tchnąć życie w zaniedbywany od lat zabytek przy zwróceniu szczególnej uwagi na jego niewątpliwe walory architektoniczne, przetrwałe po dziś dzień. Projekt skupia się na koncepcji „przemian” jakim podlegał obiekt, fragmentarycznych wyburzeń i zniszczeń.
Celem, było zasygnalizowanie istnienia wyburzonej, ciągnącej się na długości budynku oryginalnej kubatury

stanowiącej część niegdysiejszego budynku produkcyjnego a jednocześnie integralny element założenia fabrykanckiego.

Projekt ma za zadanie uświadomienie odwiedzającym wartości przemian, jakie odbywały się na tym terenie w kontekście czasu. Nie poprawia istniejącego budynku, nie demontuje wtórnych naleciałości, nie upiększa go a jedynie zabezpiecza i oczyszcza w taki sposób, aby nadawał się do pełnienia funkcji dla niego projektowanej.

Dobudowywana kubatura, to współczesna forma wywołująca złudzenie; ruchu, jakby stopklatki czy migawki sygnalizującej proces jaki dokonywał się w tym miejscu.
Całość wykonana w konstrukcji stalowej. Materiały to oprócz stali również cegła, miedź i szkło podkreślające industrialny charakter terenu na jakim się znajduje.
